Edificio Terra

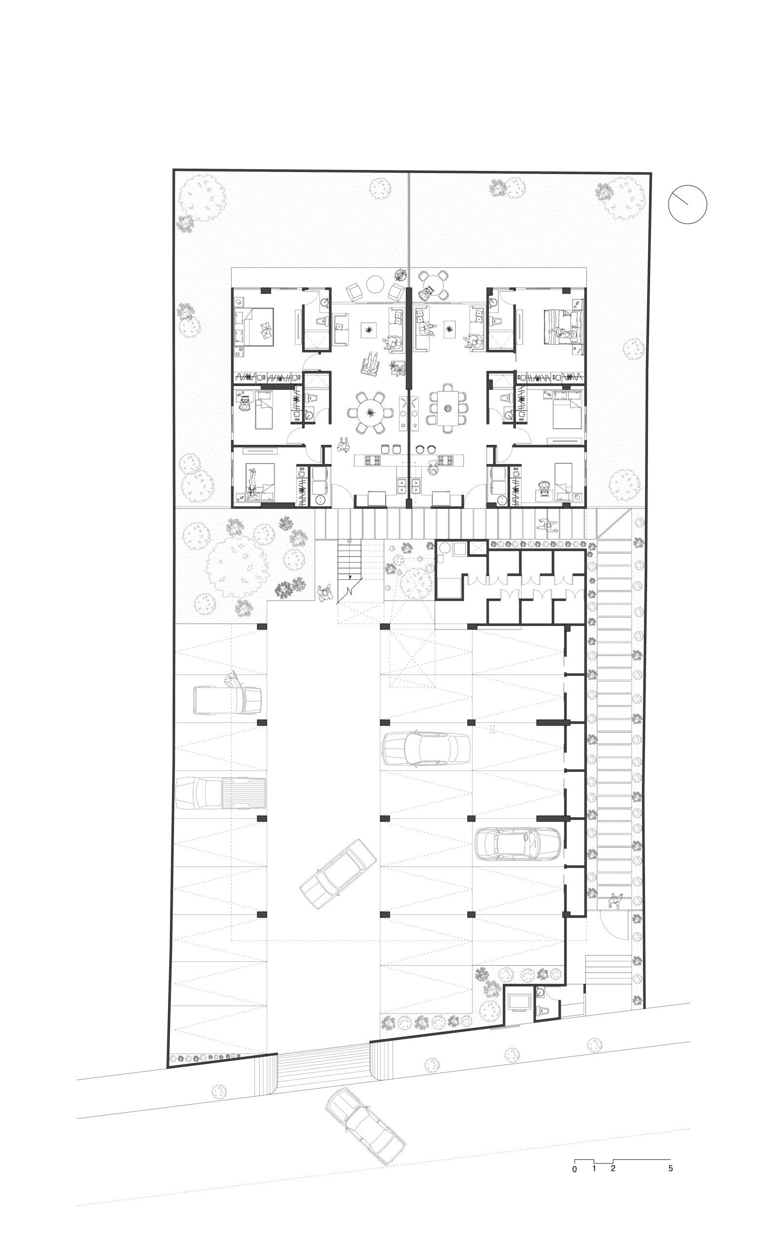
El proyecto se implanta en Quito, en un lote con frente a dos vías y en una zona suburbana en crecimiento ubicada en el valle oriental de la ciudad. Por esto, se plantea proyectar un edificio residencial de densidad media, de solo tres niveles de altura y de tipología aislada debido a la normativa del sector. Esto genera un bajo impacto en el sitio y de alguna manera marca las pautas de transición entre la vivienda suburbana de tipología aislada y un edificio de departamentos. Por esta razón el proyecto busca responder a tres cosas fundamentales en su ejecución.

La primera es la fachada, la cual responde de manera distinta en sus cuatro lados. Dos de ellos hacen frente a dos calles (frontal y posterior), por lo cual las fachadas se enfrentan con ventanas piso techo detrás de un generoso balcón corrido para reconocer a las calles y su jerarquía en el contexto. Otra colinda parcialmente con un lote vacío y una vivienda de una planta, la cual responde con una fachada que genera retranqueos en todo su largo y crea partición del bloque en tres volúmenes, uno de ellos abalconado hacia la vista para aprovechar los vacíos urbanos y la baja altura de edificación de la casa vecina. Y la cuarta fachada da hacia una típica casa suburbana con aire campestre, enclaustrada en su cerramiento y con poco valor arquitectónico. Debido a esto, la fachada se desarrolla de manera lineal y plana y sus aperturas son las estrictamente necesarias.

La siguiente es la tipología, ya que si bien su condición aislada nos brinda la posibilidad de tener cuatro caras, también nos quita la opción de generar una fachada continua en el contexto. Debido a esto, el proyecto introduce un patio central semi abierto que permite a la fachada entrar literalmente en el edificio, genera continuidad en sí mismo y maximiza la superficie de fachada para iluminación y ventilación de las viviendas. Además, el patio tiene una triple altura, el cual permite iluminar y ventilar las circulaciones comunales e incluso el parqueadero cubierto que se ubica en la planta baja del edificio.

Y por último el contexto, al cual el proyecto se acopla de manera discreta pero destacada, con un volumen de ladrillo de tres plantas que no supera la altura de edificación de la mayoría de las viviendas del sector. Así, por un lado logra mimetizarse en forma y tamaño pero también destaca por su entendimiento del lugar y respeto de la tipología preexistente, por sus aperturas en fachadas que reconocen las visuales del sector y por su materialidad homogénea que unifica el volumen y reconoce la tradición local del material.

Whatsapp
Contactanos por WhatsApp